ARCK Series Monoblock Concrete Kiosks
TEDAŞ-MYD’nin ilgili şartnamesine göre BS-35 betondan üretilen Armtek Elektrik Monoblok Beton Köşkler, açık alanlarda modüler ve kompakt hava yalıtımlı hücreler/ gaz yalıtımlı hücreler, dağıtım trafoları, AG panolar, karayolu ve demiryolu ekipmanları, jenaratörler ve diğer orta gerilim şalt cihazları ve dağıtım ürünleri için 12- 36 kV’ya kadar dağıtım sistemlerinde kullanıma uygundur. Tip testleri ICMET – LVT tarafından yapılmıştır. Tüm özel ölçüler ve donanım eklentileri için satis@armtek.com.tr ‘den bilgi alabilirsiniz
IEC 62271-202 - TS EN 62271-202 HV/LV prefabricated transformer substations
IEC 62271-200 - TS EN 62271-200 HV Switching and control scheme
IEC 60529 - TS EN 3033 EN 60529 Classification of protection degrees of enclosures
IEC 60787 - TS IEC 60787 Y g Application guide for replacement elements used in transformer circuit protections
TS 822 Galvanized flat and corrugated sheets
EN ISO 1461-EQV - TS EN ISO 1461 Hot-dipped galvanized coatings on materials made of iron and steel
EN ISO 1460 - TS EN ISO 1460 Metallic coatings - on iron-based materials hot dipped galvanized coatings
EN ISO 2409 - TS EN ISO 2409 Paints and varnishes - Cross cutting test
EN ISO 4628-3 - TS EN ISO 4628-3 Paint and varnishes - Evaluation of deterioration in paint coatings - Evaluation of the degree of corrosion
IEC 60439-1 - TS 708 Concrete steel bars
IEC 60068-2-11 - TS 2093 EN 60068-2-11 Salt fog test
IEC 60076-1 - TS 267 EN 60076-1 Power transformers
IEC 61442TS - EN 61442 Cables declared voltages 6 kV to 36 kV Test methods for auxiliary equipment
of power cables up to
ARCK-T2550 P: 50-1000kVA Download file
ARCK-T3200 – P: 50-1600 kVA Download file
ARCK K4500 Download file
ARCK K5500 Download file
ARCK-H5500 – P: 50-1000 kVA Download file
ARCK-H5500 – P: 50-1600 kVA Download file
ARCK K6500 Download file
ARCK-H6500 – P: 50-1000 kVA Download file
ARCK-H6500 – P: 50-1600 kVA Download file
ARCK K7500 Download file
ARCK-H7500 – P: 50-1000 kVA Download file
ARCK-H7500 – P: 50-1600 kVA Download file
ARCK-Lifting&Locating Instructions Download file
Boğaziçi Electricity Distribution Inc.
Çamlıbel Electricity Distribution Inc.
Akdeniz Electricity Distribution Inc.
Kayseri and Vicinity Electricity Türk Inc.
İGA New Istanbul Airport
KMO Northern Marmara Highway
Trakya Electricity Distribution Inc.
Sakarya Electricity Distribution Inc.
Yeşilırmak Electricity Distribution Inc.
Aksa Fırat-Çoruh Electricity Distribution Inc.
Osmangazi Electricity Distribution Inc.
Aras Electricity Distribution Inc.
ARCK T2550 - 1000 kVA Download File
ARCK K4500 Download File
ARCK K5500 Download File
ARCK H5500 - 1000 kVA Download File
ARCK H5500 - 1600 kVA Download File
ARCK K6500 Download File
ARCK H6500 - 1000 kVA Download File
ARCK H6500 - 1600 kVA Download File
ARCK K7500 Download File
ARCK H7500 - 1000 kVA Download File
ARCK H7500 - 1600 kVA Download File


|
IEC 62271-202 |
TS EN 62271-202 |
YG/AG prefabrik transformatör merkezleri |
|
IEC 62271-200 |
TS EN 62271-200 |
YG Anahtarlama ve kontrol düzeni |
|
IEC 60529 |
TS EN 3033 EN 60529 |
Mahfazaların koruma derecelerinin sınıflandırılması |
|
IEC 60787 |
TS IEC 60787 |
YG transformatör devre korumalarında kullanılan değiştirme elemanlarının uygulama kılavuzu |
|
TS 822 |
Galvanizli düz ve oluklu saclar |
|
|
EN ISO 1461-EQV |
TS EN ISO 1461 |
Demir ve çelikten yapılmış malzemeler üzerine sıcak daldırılmış galvaniz kaplamalar |
|
EN ISO 1460 |
TS EN ISO 1460 |
Metalik kaplamalar - demir esaslı malzemeler üzerine sıcak daldırılmış galvaniz kaplamalar |
|
EN ISO 2409 |
TS EN ISO 2409 |
Boyalar ve vernikler - Çapraz kesme deneyi |
|
EN ISO 4628-3 |
TS EN ISO 4628-3 |
Boya ve vernikler - Boya kaplamalarındaki bozulmanın değerlendirilmesi - paslanma derecesinin değerlendirilmesi |
|
IEC 60439-1 |
TS 708 |
Beton çelik çubukları |
|
IEC 60068-2-11 |
TS 2093 EN 60068-2-11 |
Tuzlu sis deneyi |
|
IEC 60076-1 |
TS 267 EN 60076-1 |
Güç transformatörleri |
|
IEC 61442 |
TS EN 61442 |
Kablolar beyan gerilimleri 6 kV’dan 36 kV’a kadar olan güç kablolarının yardımcı donanımları için deney metodları |
|
EN 62271-1 |
TS EN 62271-1 |
YG anahtarlama düzeni ve kontrol düzeni - Alternatif akım anahtarlama düzeni ve kontrol düzeni için ortak özellikler |
Boğaziçi Elektrik Dağıtım A.Ş.
Çamlıbel Elektrik Dağıtım A.Ş.
Akdeniz Elektirik Dağıtım A.Ş
Kayseri ve Civarı Elektrik Türk A.Ş
İGA Yeni İstanbul Havaalanı
KMO Kuzey Marmara Otoyolu
Trakya Elektrik Dağıtım A.Ş.
Sakarya Elektrik Dağıtım A.Ş
Yeşilırmak Elektrik Dağıtım A.Ş
Aksa Fırat- Çoruh Elektrik Dağıtım A.Ş
Osmangazi Elektrik Dağıtım A.Ş
Aras Elektrik Dağıtım A.Ş


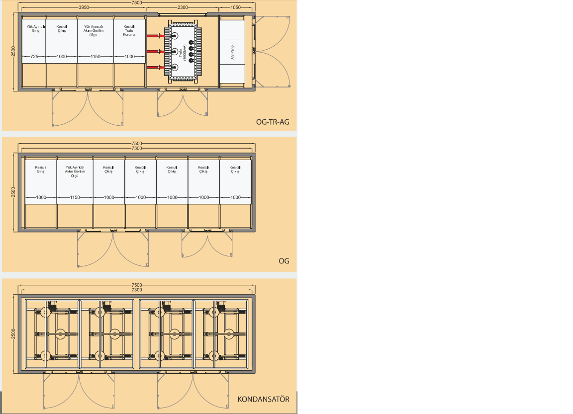
ARCK series MV-AG Prefabricated Monoblock Concrete Transformer and Distribution Centers are products designed for MV-LV electrical facilities and produced according to relevant international standards and specifications.
Usage areas
It is used as MV/LV Transformer Center, MV Distribution Center
Panel Cabinet and Generator Cabinet
in electricity production (RES/HES), transmission and distribution facilities, industrial and commercial facilities .
Advantages
- Personnel safety is ensured by internal arc resistance and protection class proven by type tests.
- Hardware and internal grounding system assembled and tested in a factory environment.
- Standard-compliant and high-quality electrical equipment.
- High quality electrical equipment.
- Resistant to harsh environmental factors.
- Minimum installation space and labor effort.
- Easy installation and commissioning.
- Customizable aesthetic structure and surface coating with unlimited color options.
Use of
Concrete kiosks, which require minimum facility area with a long-lasting, environmentally resistant enclosure, have the features of fast installation, portability and rapid commissioning. They have an aesthetic structure that is compatible with the environment with their color options.
Internal Grounding and Lighting System
The steel reinforcement of the concrete enclosure, the grounding terminals of the door and electrical equipment, and all other metal parts that need to be grounded are carried to the potential equalization busbar using the conductors specified in the standards and specifications.
Structural Features
ARCK series Prefabricated Monoblock Concrete Transformer and Distribution Centers consist of the following basic components:
- MV/LV Switching Elements
- Transformer
- MV/LV Internal Connection Elements
- AC/DC Auxiliary Voltage Source
- Business Safety Materials
Environmental Features
Elevation | 2000m |
Ambient temperature | -25…+50 °C |
Environmental Pollution | Level 3 |
Maximum Solar Radiation | 1000W/m² |
Relative Humidity (Max.%) | 95 |
Earthquake Acceleration (Y/V) | 0.5g / 0.4g |
System Grounding | Grounded via resistance or directly grounded |








