ARCK Serisi Monoblok Beton Köşkler
TEDAŞ-MYD’nin ilgili şartnamesine göre BS-35 betondan üretilen Armtek Elektrik Monoblok Beton Köşkler, açık alanlarda modüler ve kompakt hava yalıtımlı hücreler/ gaz yalıtımlı hücreler, dağıtım trafoları, AG panolar, karayolu ve demiryolu ekipmanları, jenaratörler ve diğer orta gerilim şalt cihazları ve dağıtım ürünleri için 12- 36 kV’ya kadar dağıtım sistemlerinde kullanıma uygundur. Tip testleri ICMET – LVT tarafından yapılmıştır. Tüm özel ölçüler ve donanım eklentileri için satis@armtek.com.tr ‘den bilgi alabilirsiniz
IEC 62271-202 - TS EN 62271-202 YG/AG prefabrik transformatör merkezleri
IEC 62271-200 - TS EN 62271-200 YG Anahtarlama ve kontrol düzeni
IEC 60529 - TS EN 3033 EN 60529 Mahfazaların koruma derecelerinin sınıflandırılması
IEC 60787 - TS IEC 60787 YG transformatör devre korumalarında kullanılan değiştirme elemanlarının uygulama kılavuzu
TS 822 Galvanizli düz ve oluklu saclar
EN ISO 1461-EQV - TS EN ISO 1461 Demir ve çelikten yapılmış malzemeler üzerine sıcak daldırılmış galvaniz kaplamalar
EN ISO 1460 - TS EN ISO 1460 Metalik kaplamalar - demir esaslı malzemeler üzerine sıcak daldırılmış galvaniz kaplamalar
EN ISO 2409 - TS EN ISO 2409 Boyalar ve vernikler - Çapraz kesme deneyi
EN ISO 4628-3 - TS EN ISO 4628-3 Boya ve vernikler - Boya kaplamalarındaki bozulmanın değerlendirilmesi - paslanma derecesinin değerlendirilmesi
IEC 60439-1 - TS 708 Beton çelik çubukları
IEC 60068-2-11 - TS 2093 EN 60068-2-11 Tuzlu sis deneyi
IEC 60076-1 - TS 267 EN 60076-1 Güç transformatörleri
IEC 61442TS - EN 61442 Kablolar beyan gerilimleri 6 kV’dan 36 kV’a kadar olan güç kablolarının yardımcı donanımları için deney metodları
EN 62271-1 - EN 62271-1 YG anahtarlama düzeni ve kontrol düzeni - Alternatif akım anahtarlama düzeni ve kontrol düzeni için ortak özellikler
ARCK-T2550 P: 50-1000kVA Dosya indir
ARCK-T3200 – P: 50-1600 kVA Dosya indir
ARCK K4500 Dosya indir
ARCK K5500 Dosya indir
ARCK-H5500 – P: 50-1000 kVA Dosya indir
ARCK-H5500 – P: 50-1600 kVA Dosya indir
ARCK K6500 Dosya indir
ARCK-H6500 – P: 50-1000 kVA Dosya indir
ARCK-H6500 – P: 50-1600 kVA Dosya indir
ARCK K7500 Dosya indir
ARCK-H7500 – P: 50-1000 kVA Dosya indir
ARCK-H7500 – P: 50-1600 kVA Dosya indir
ARCK - Taşıma ve İndirme Talimatı Dosya indir
Boğaziçi Elektrik Dağıtım A.Ş.
Çamlıbel Elektrik Dağıtım A.Ş.
Akdeniz Elektirik Dağıtım A.Ş
Kayseri ve Civarı Elektrik Türk A.Ş
İGA Yeni İstanbul Havaalanı
KMO Kuzey Marmara Otoyolu
Trakya Elektrik Dağıtım A.Ş.
Sakarya Elektrik Dağıtım A.Ş
Yeşilırmak Elektrik Dağıtım A.Ş
Aksa Fırat- Çoruh Elektrik Dağıtım A.Ş
Osmangazi Elektrik Dağıtım A.Ş
Aras Elektrik Dağıtım A.Ş
ARCK T2550 - 1000 kVA Dosya indir
ARCK K4500 Dosya indir
ARCK K5500Dosya indir
ARCK H5500 - 1000 kVA Dosya indir
ARCK H5500 - 1600 kVA Dosya indir
ARCK K6500 Dosya indir
ARCK H6500 - 1000 kVA Dosya indir
ARCK H6500 - 1600 kVA Dosya indir
ARCK K7500 Dosya indir
ARCK H7500 - 1000 kVA Dosya indir
ARCK H7500 - 1600 kVA Dosya indir


IEC 62271-202 | TS EN 62271-202 | YG/AG prefabrik transformatör merkezleri |
IEC 62271-200 | TS EN 62271-200 | YG Anahtarlama ve kontrol düzeni |
IEC 60529 | TS EN 3033 EN 60529 | Mahfazaların koruma derecelerinin sınıflandırılması |
IEC 60787 | TS IEC 60787 | YG transformatör devre korumalarında kullanılan değiştirme elemanlarının uygulama kılavuzu |
TS 822 | Galvanizli düz ve oluklu saclar | |
EN ISO 1461-EQV | TS EN ISO 1461 | Demir ve çelikten yapılmış malzemeler üzerine sıcak daldırılmış galvaniz kaplamalar |
EN ISO 1460 | TS EN ISO 1460 | Metalik kaplamalar - demir esaslı malzemeler üzerine sıcak daldırılmış galvaniz kaplamalar |
EN ISO 2409 | TS EN ISO 2409 | Boyalar ve vernikler - Çapraz kesme deneyi |
EN ISO 4628-3 | TS EN ISO 4628-3 | Boya ve vernikler - Boya kaplamalarındaki bozulmanın değerlendirilmesi - paslanma derecesinin değerlendirilmesi |
IEC 60439-1 | TS 708 | Beton çelik çubukları |
IEC 60068-2-11 | TS 2093 EN 60068-2-11 | Tuzlu sis deneyi |
IEC 60076-1 | TS 267 EN 60076-1 | Güç transformatörleri |
IEC 61442 | TS EN 61442 | Kablolar beyan gerilimleri 6 kV’dan 36 kV’a kadar olan güç kablolarının yardımcı donanımları için deney metodları |
EN 62271-1 | TS EN 62271-1 | YG anahtarlama düzeni ve kontrol düzeni - Alternatif akım anahtarlama düzeni ve kontrol düzeni için ortak özellikler |
Boğaziçi Elektrik Dağıtım A.Ş.
Çamlıbel Elektrik Dağıtım A.Ş.
Akdeniz Elektirik Dağıtım A.Ş
Kayseri ve Civarı Elektrik Türk A.Ş
İGA Yeni İstanbul Havaalanı
KMO Kuzey Marmara Otoyolu
Trakya Elektrik Dağıtım A.Ş.
Sakarya Elektrik Dağıtım A.Ş
Yeşilırmak Elektrik Dağıtım A.Ş
Aksa Fırat- Çoruh Elektrik Dağıtım A.Ş
Osmangazi Elektrik Dağıtım A.Ş
Aras Elektrik Dağıtım A.Ş


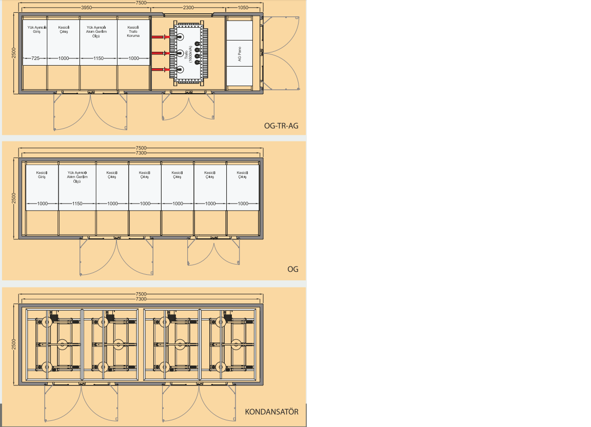
ARCK serileri OG-AG Prefabrik Monoblok Beton Transformatör ve Dağıtım Merkezleri, OG-AG elektrik tesisleri için tasarlanmış, ilgili uluslararası standartlara ve şartnamelere göre üretilen ürünlerdir.
Kullanım Alanları
Elektrik üretim (RES/HES), iletim ve dağıtım tesisleri ile endüstriyel ve ticari tesislerde
OG/AG Transformatör Merkezi
OG Dağıtım Merkezi
AG Pano Kabini
Jeneratör Kabini olarak kullanılmaktadır.
Avantajlar
- Tip testleri ile kanıtlanmış iç ark dayanımı ve koruma sınıfı ile sağlanan personel güvenliği.
- Fabrika ortamında montajı yapılmış ve test edilmiş donanım ve iç topraklama sistemi.
- Standartlara uygun ve yüksek kaliteli elektriksel donanım.
- Yüksek kaliteye sahip elektrik ekipmanları.
- Zorlu çevresel etkenlere karşı dayanıklı.
- Minimum montaj alanı ve işçilik uğraşı.
- Kolay kurulum ve devreye alma.
- Sınırsız renk seçeneğiyle özelleştirilebilir estetik yapı ve yüzey kaplama.
Kullanımı
Uzun ömürlü, çevre koşullarına dayanıklı mahfaza ile asgari tesis alanına ihtiyaç duyan beton köşkler; hızlı kurulum, taşınabilirlik ve hızlı devreye alma özelliklerine sahiptir. Renk seçenekleri ile çevreyle uyumlu estetik yapıdadırlar.
İç Topraklama ve Aydınlatma Sistemi
Beton mahfazanın çelik donatısı, kapı ve elektrik teçhizatının topraklama terminalleri ve topraklaması gereken diğer bütün metal parçalar standart ve şartnamelerde belirtilen iletkenler kullanılarak potansiyel dengeleme barasına taşınmaktadır.
Yapısal Özellikler
ARCK serisi Prefabrik Monoblok Beton Transformatör ve Dağıtım Merkezleri aşağıda belirtilen temel bileşenlerden oluşur:
- OG/AG Anahtarlama Elemanları
- Transformatör
- OG/AG Dahili Bağlantı Elemanları
- AC/DC Yardımcı Gerilim Kaynağı
- İşletme Güvenlik Malzemeleri
Çevresel Özellikler
Yükselti | 2000 m |
Ortam Sıcaklığı | -25…+50 °C |
Ortam Kirliliği | Düzey 3 |
En Yüksek Güneş Işınımı | 1000 W/m² |
Bağıl Nem (Azami %) | 95 |
Yer Sarsıntısı İvmesi (Y/D) | 0.5 g / 0.4 g |
Sistem Topraklaması | Direnç üzerinden topraklı ya da direkt topraklı |








